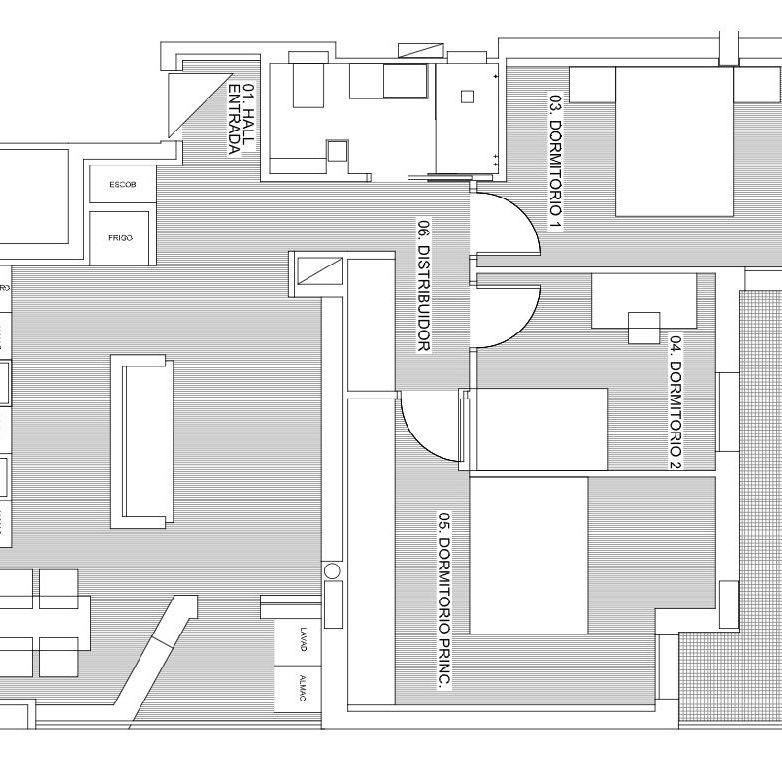
- Ubicación: Zaramaga.
- Tamaño: 106 m² construidos.
- Distribución interior: 3 habitaciones y 1 baño.
- Características: Calefacción de suelo radiante. Persianas eléctricas. 2 terrazas cerradas.
- Estado general: Para entrar a vivir.
- Servicios y comodidades: Trastero. Armarios empotrados.
- Otros detalles: Planta 5.











